

à propos de nous
Technicien d’études du bâtiment en dessin de projet, dessinateur projeteur, études de PLU, réalisation d’esquisse de permis de construire ainsi que des plans d’exécutions. Nous réalisons le relevé d’état des lieux. Nous travaillons sur Archicad, sketchup, autocad. Spécialise dans le domaine du bois (ossature, charpente, aménagement de terrasse, pergolas, …).
Nous réalisons des mises en situation de projet en 3D, ainsi que du BIM.
Je suis Menuisier Ébéniste de formation, je conçois et réalise toute fabrication en bois intérieur et extérieur. De l’agencement intérieur personnel et professionnel ainsi que des réalisations d’escaliers de cuisines sur mesure et des conceptions de terrasses de plain-pied ou sur pilotis, de la conception de meubles divers et aussi du mobilier d’extérieur. Nous concevons toutes nos réalisations sur des logiciels 3D pour plus de visibilité clientèle. Du conseil à l’entretien de vos projets bois, nous travaillons exclusivement à partir de matériaux issus de fournisseurs de la région. Nous nous tenons à jour au niveau des nouveautés en bâtiment, et privilégions l’environnement et le recyclage.


Services



Etudes de Faisabilité
Pour tous vos projets de construction, de travaux de rénovation … nous pouvons vous apporter notre expertise en conception et étude d’avant-projet pour réaliser avec vous celui qui vous convient, répondant à vos attentes et s’inscrivant dans votre budget.
Nous intervenons à diverses étapes, de la mise au point à la finalisation de votre projet. Nous vous proposons notamment :
- analyse de la réglementation
Vous avez besoin d’aide pour comprendre la réglementation en vigueur dans votre commune, pour savoir quelles sont vos possibilités de construction ou de travaux sur un terrain ou un bâtiment existant.
Cette étape permet de confirmer les possibilités de construction sur votre terrain, de mettre au point les gabarits et les emprises possibles de votre future projet.
Vous connaissez ainsi l’adéquation du terrain avec vos besoins et pouvez anticiper la réalisation de votre projet.
- étude de faisabilité
Vous voulez faire construire et avez du mal à définir votre projet, votre budget ou les techniques que vous pouvez utiliser.
L’étude de faisabilité est la première mise au point de votre projet en fonction de vos besoins, de votre budget, des règles d’urbanisme, de l’environnement. Elle permet de vérifier l’adéquation de ces différents éléments et de dresser un premier programme.
A partir de là, vous pouvez envisagez de développer votre projet seuls ou avec notre aide.
- conseils personnalisés
Plans & 3D
Nos compétences dans les domaines de la construction et de la réalisation de dossiers administratifs ou de représentation de projets nous permettent de vous proposer une gamme élargie de services qui peuvent répondre à vos attentes.
Permis de construire – Déclaration préalable
Vous souhaitez externaliser les démarches administratives liées à vos projets de constructions. Nous réalisons les dossiers de permis de construire et déclaration préalable de vos clients.
Vous avez des projets répétitifs, nous prenons en charge la réalisation de vos dossiers.
Infographie 2D et 3D – Représentation de projets
Nous réalisons vos plans de vente, vos catalogues de maisons.
Nous prenons en charge la représentation de tous vos projets en 2D mais aussi la communication par la biais d’images 3D, de retouche photo … dans le cadre de vos plaquettes commerciales et de votre communication auprès de vos clients.
Nous réalisons l’insertion graphique de vos projets pour vos permis de construire.
Saisie de plans
A partir de vos plans papier, de relevés géomètres … nous nous chargeons de la saisie informatique de tous vos projet, quelle que soit la surface et le type de bâtiment (maison, lotissement, immeuble, local industriel ou commercial).
Permis de construire
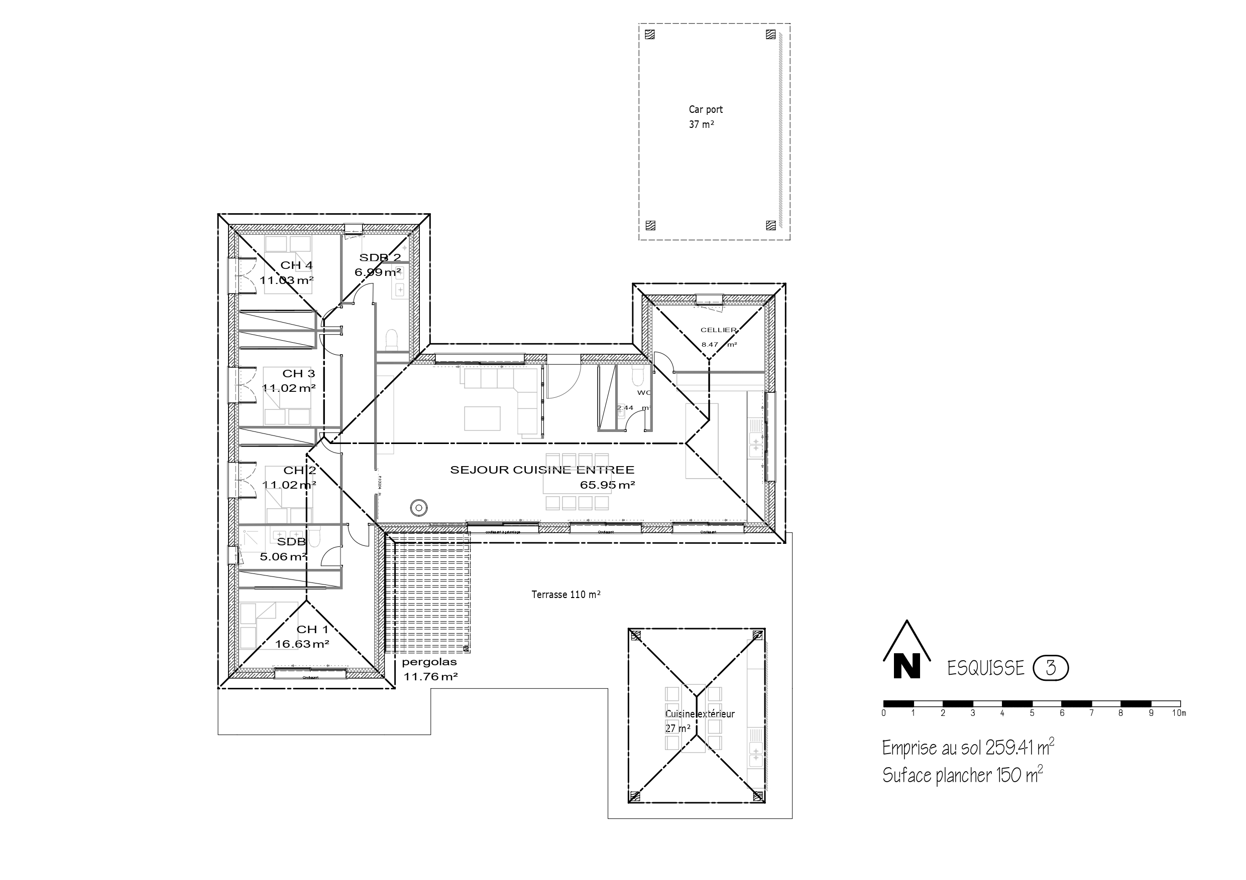
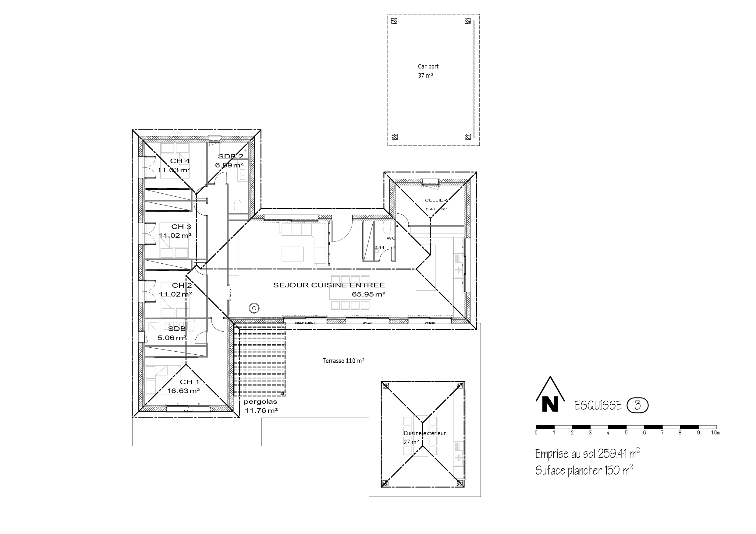
Nous réalisons tous vos dossiers de permis de construire et de déclaration préalable dans la limite de projets de moins de 150 m² de Surface de plancher ou d’emprise au sol (au-delà, il est obligatoire de faire appel à un architecte) à partir de vos plans et de tous les élements nécessaires que vous nous faites parvenir.
Nous vous fournissons tous les éléments dont vous avez besoin pour que vos projets de construction neuve ou de travaux sur existant se passent dans les meilleures conditions possibles.
En faisant appel à nous, vous avez l’assurance de disposer :
- d’un dossier complet de qualité professionnelle
Nous réalisons un dossier complet conforme aux obligations administratives légales en fonction de la réglementation en vigueur au moment de notre prestation. Notre expérience nous permet de vous proposer un dossier de qualité professionnelle présentant votre projet selon les normes convenues et répondant aux attentes des services de l’urbanisme afin de maximiser les chances de validation de votre projet.
Le dossier comprend les pièces obligatoires selon le formulaire CERFA adapté à votre projet (13406*02 – 13404*02 – 13409*02 pour les plus courants). Dans certains cas, des pièces complémentaires peuvent être nécessaires lors du dépôt de votre dossier de permis de construire. Nous validons avec vous les besoins de compléments au dossier.
- d’une réalisation rapide et donc un dépôt dans les meilleurs délais




Planifier une consultation gratuite

Projets


J’ai un plan 2022.



















